Ritarslingan 18 i Arninge

Med en takhöjd på upp till 6 meter och en smart planlösning finns stora möjligheter att anpassa lokalerna efter din verksamhets behov. Fastigheten har flera portar för smidig in- och utlastning samt goda parkeringsmöjligheter direkt utanför. 

Utförande

Beskrivning:
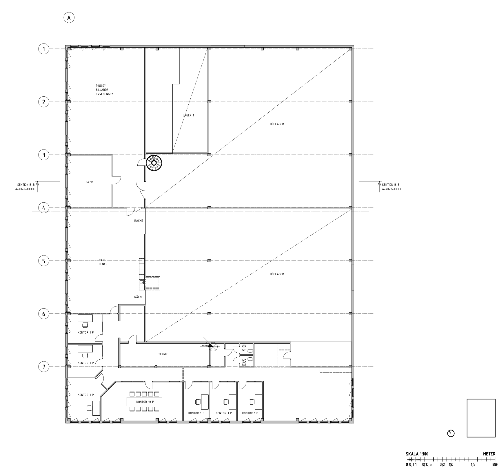
Pelarbyggd fastighet med mellanväggar som kan anpassas efter ny hyresgästs önskemål. Totalrenovering av inre ytskikt är under planering för färdigställande 2026.

Planlösning:
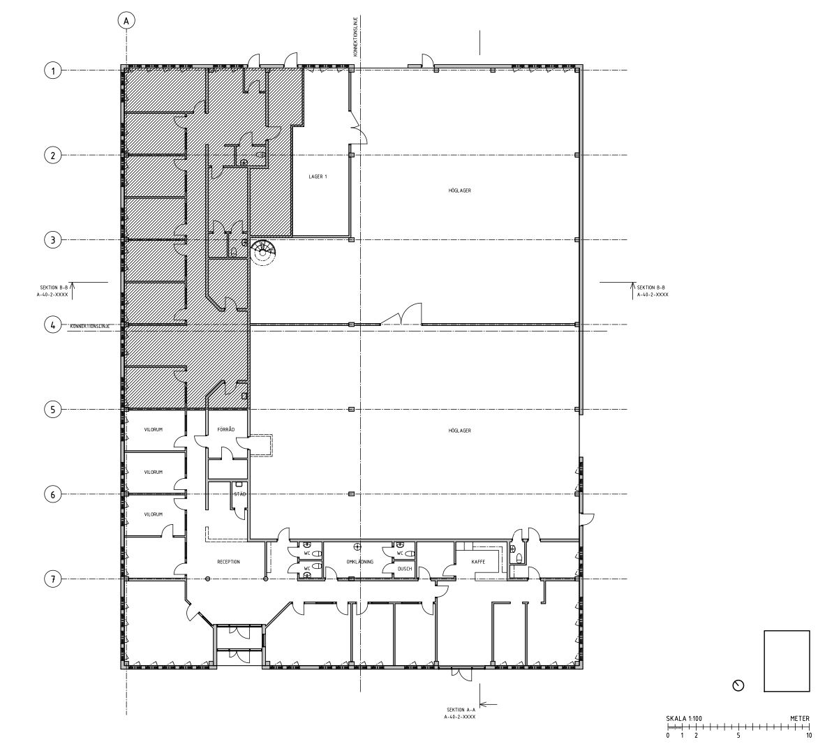
Nyrenoverad lokal med öppen planlösning som kan anpassas efter behov. Genomgående ljus lokal med stort kök, balkong, två toaletter samt dusch. Lokalen består idag av sju rum i olika storlekar, flera av rummen passar bra att nyttja som konferensrum. Lasthiss för 630 kg finns. Gården låses nattetid. Mycket bra exponering mot Nynäsvägen och trafikplats Länna. Fördelaktig hyra.

Teknisk information

Omgivning/Natur:
Arninge är ett område i stark tillväxt med bra serviceutbud och utmärkta kommunikationer. Här sitter du strategiskt för att nå hela norra Storstockholm

Företag i närheten:
Arninge är en hub för många ledande företag och butiker.

Parkeringsmöjligheter:
Egen privat parkering. För den som ställer krav på garage kan det anpassas i någon av portarna alternativt att ny port kompletteras.

Närservice:
Stort utbud av butiker och restauranger.

Skyltläge:
Finns möjlighet till stor skylt på fasad.

Närservice:
Arninge har flera lunchrestauranger, ICA Maxi, Rusta, Jysk, Clas Olsson, Jula, Cosco, COOP, systembolag m.m

 

 

Beskrivning

Total yta

2000 m2

Våningsplan:

2 av 2

Tillträde:

Enligt ök.

Hiss:

Ja

Ekonomi:

Hyresinformation:Hyresnivån indikeras till 1500:-/kvm men kan komma att ändras beroende på hyresgästs anpassningsbehov och hyreskontraktets löptid.

 

Kontaktuppgifter:

Ulf Ericsson
Mobil: 070-714 86 86
E-post: ulf.ericsson@lundbergkock.se